Partenaire de vos créations ameublement et agencement
150.07 150.07 1

Kit complet WingLine 77

HETTICH

  • Charge : 25 kg/vantail
  • Garniture : Pour 2 vantaux
  • Hauteur de porte maxi : 2400 mm
  • Largeur de porte maxi : 500 mm
  • Nombre de portes : 1
  • Pour vantail épaisseur : 19 à 25 mm

› Voir la description complète
À partir de
125,06 € HT
150,07 € TTC (TVA 20.00%)
Voir les références
Stock Sur commande (avec stock) Stock À épuisement du stock Stock En cours de réapprovisionnement Stock Sur commande Stock En stock
Sélectionnez vos critères :
Référence Côte de ferrage Dispo. Prix HT Prix TTC Prix UV Unité de Vente Qté
Ref. 0 070 983
Accessoires
A gauche
En stock
125,06 € 150,07 € 125,06 € HT
150,07 € TTC
kit
Ref. 0 070 984
Accessoires
A droite
En stock
125,06 € 150,07 € 125,06 € HT
150,07 € TTC
kit
à partir de
125,06 € HT
150,07 € TTC (TVA 20.00%)

Ref : Renseignez vos critères

WingLine 77 pour 1 porte pliante à 2 vantaux à droite respectivement à gauche.

Conception de caisson convenant également pour portes battantes et coulissantes.

Aucun renfort de panneau supérieur nécessaire.

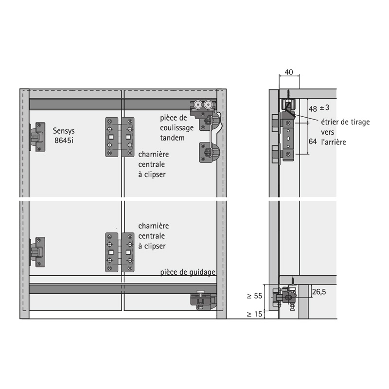
La garniture complète pour 1 porte à 2 vantaux comprend :

  • 1 pièce de coulissage tandem
  • 1 support avec réglage en hauteur
  • 1 pièce de guidage
  • 4 charnières centrales à clipser
  • 2 feutres d'amortissement

Les profilés sont à commander séparément.

 

 

Application :

Cette ferrure permet l’aménagement de meuble divers, d’armoire de chambre à coucher et de bureau.

La ferrure WingLine 77 est utilisée pour la conception de porte coulissante pliante à deux vantaux réduisant l’encombrement dans la pièce d’utilisation. Fermés, les vantaux restent tous dans le même alignement.

Possibilité de concevoir des meubles avec 2 ou 4 vantaux pliants.

Le vantail latéral pivote sur charnières invisible 110° type Sensys ou Intermat Hettich (non fournies).

+ produit :
  • Guide et entraîneur perçage Ø35x11,5mm
 
Infos montage :

Montage des portes intérieure ou en façade.

 

Caractéristiques :
Charge25 kg/vantail
GarniturePour 2 vantaux
Hauteur de porte maxi2400 mm
Largeur de porte maxi500 mm
Nombre de portes1
Pour vantail épaisseur19 à 25 mm